REZERWACJA 2 pokoje oddzielna kuchnia Ochota - Sprzedane

Mieszkanie na sprzedaż
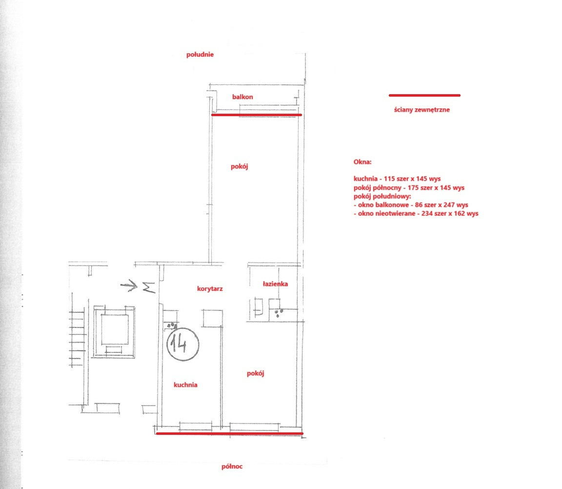
709 000,00 PLN , Pow. 49,30 m2
Typ nieruchomości:
Mieszkanie
Powierzchnia:
49,30 m2
Typ transakcji:
sprzedaż
Liczba pokoi:
2
Lokalizacja:
Warszawa Ochota Szczęśliwice , Władysława Korotyńskiego
Rok budowy:
1976
Piętro:
8 na 12
Numer oferty:
716500
Cena za m2:
14 381,00 PLN
REZERWACJA !!! 

709 000 zł | SPRZEDAŻ | 49,30 m2 | 2 POKOJE | WARSZAWA | KOROTYŃSKIEGO | OCHOTA

Przedmiotem sprzedaży jest 2-pokojowe mieszkanie, usytuowane na 8 piętrze 12- to piętrowego budynku przy ul. Korotyńskiego w Warszawie.
Mieszkanie składa się z salonu, sypialni, oddzielnej kuchni, łazienki oraz przedpokoju. Do mieszkania przynależy balkon od strony południowej.
Jest też piwnica o powierzchni 2,3 m2. 

Budynek został oddany do użytkowania w 1976 roku i jest własnością Spółdzielni Mieszkaniowej "Ochota". Został ujawniony w księdze wieczystej działki gruntu, której właścicielem jest Miasto Stołeczne Warszawa, a użytkownikiem wieczystym do roku 2120 w/w spółdzielnia.

STAN PRAWNY LOKALU: SPÓŁDZIELCZE WŁASNOŚCIOWE PRAWO DO LOKALU Z MOŻLIWOŚCIĄ ZAŁOŻENIA KSIĘGI WIECZYSTEJ.  

Wirtualny spacer: https://sb360.online/b53gdu 

Świetna lokalizacja do dalszego najmu. Mieszkanie doskonałe zarówno dla singla, pary lub jako zakup inwestycyjny.

LOKALIZACJA:

- w pobliżu Park Szczęśliwicki oraz Górka Szczęśliwicka z całorocznym wyciągiem narciarskim
- w pieszej odległości: odkryta pływalnia - OSiR Ochota, Fitness Klub ZDROFIT, szkoły, przedszkola, liceum,
- w okolicy: Warszawski Uniwersytet Medyczny, Szpital, Centrum Sportowo - Rehabilitacyjne WUM

Wysokość czynszu - 880 zł.

Zapraszamy na prezentację,

Agnieszka Królica
602 126 180
Magdalena Zakrzewska
606 621 433

* Treść niniejszego ogłoszenia nie stanowi oferty handlowej w rozumieniu art. 66 Kodeksu Cywilnego.


Wskaźnik rocznego zapotrzebowania na energię użytkową (EU): 91.37 kWh/(m2 · rok).
Wskaźnik rocznego zapotrzebowania na energię końcową (EK): 128.66 kWh/(m2 · rok).
Wskaźnik rocznego zapotrzebowania na nieodnawialną energię pierwotną (EP): 85.85 kWh/(m2 · rok).
Jednostkowa wielkość emisji CO2 (E CO2): 0.0305 t CO2/(m2 · rok).
Udział odnawialnych źródeł energii w rocznym zapotrzebowaniu na energię końcową (U OZE): 0 %.