Duże, dwupoziomowe mieszkanie w Pruszkowie, 120m2

Mieszkanie na sprzedaż
1 290 000,00 PLN , Pow. 123,91 m2
Typ nieruchomości:
Mieszkanie
Powierzchnia:
123,91 m2
Typ transakcji:
sprzedaż
Liczba pokoi:
5
Lokalizacja:
Pruszków , Hubala
Rok budowy:
2006
Piętro:
3 na 3
Numer oferty:
471535
Cena za m2:
10 410,78 PLN
Sprzedaż | Pruszków | Mieszkanie | 1 290 000 zł | 5 POKOI | 120,71 m2  

Przedmiotem sprzedaży jest 5 pokojowe, dwupoziomowe mieszkanie, usytuowane na 3 piętrze w niskim, trzypiętrowym budynku z 2006 roku, bez windy.
Wirtualny spacer: https://sb360.online/pba2yu 

Lokal ma powierzchnię 120,71 m2 (104,35m2 + 16,36 m2 o wysokości pomiędzy 1,4 metra a 2,2 metra). Do mieszkania przynależy komórka lokatorska - 3,20 m2. Łączna powierzchnia całkowita lokalu to 123, 91m2.

Mieszkanie znajduje się przy ulicy Hubala w Pruszkowie.

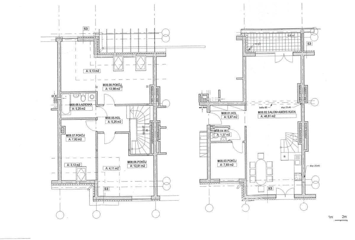
Opis mieszkania (rzut w galerii):
Poziom I
- salon z aneksem kuchennym - 46,61m2 oraz wyjściem na balkon - 6,4m2
- pokój - 7,69m2
- toaleta - 1,37m2
- hol - 5,87m2

Poziom II
- pokój - 7,92m2
- pokój - 12,91m2
- pokój - 13,98m2
- łazienka - 5,25m2
- hol - 5,25m2

Mieszkanie dwustronne- północ-południe. Salon od strony północnej.
Do lokalu przynależy miejsce postojowe w garażu podziemnym płatne dodatkowo 35.000 zł

Czynsz administracyjny w chwili obecnej wynosi 1900 zł (na 5 osób) i zawiera: koszty eksploatacyjne, fundusz remontowy, CO, wywóz nieczystości stałych, zaliczka na zimną wodę i kanalizację, zaliczka na podgrzanie wody.

Mieszkanie znajduje się w Pruszkowie, przy ulicy Hubala, w centrum miasta, 5 minut od stacji WKD, w pobliżu parku Potulickich i głównej ulicy Pruszkowa.

W odległości 10 minut piechotą 3 szkoły podstawowe (2 publiczne, 1 niepubliczna) oraz 3 przedszkola. 
Dookoła bardzo dobrze rozwinięta infrastruktura usługowa.

Zapraszamy na prezentację,

Agnieszka Dzierzgowska
606 611 113
Magdalena Zakrzewska
606 621 433

* Treść niniejszego ogłoszenia nie stanowi oferty handlowej w rozumieniu art. 66 Kodeksu Cywilnego.
Nieprawidłowy adres E-mail