3 pokoje 75m2, Piaseczno, Al. Kalin - Sprzedane

Mieszkanie na sprzedaż
899 000,00 PLN , Pow. 75,55 m2
Typ nieruchomości:
Mieszkanie
Powierzchnia:
75,55 m2
Typ transakcji:
sprzedaż
Liczba pokoi:
3
Lokalizacja:
Piaseczno
Rok budowy:
2012
Piętro:
2 na 3
Numer oferty:
228255
Cena za m2:
11 899,40 PLN
899 000 zł | SPRZEDAŻ | 75,5 m2 | 3 POKOJE | PIASECZNO I ALEJA KALIN

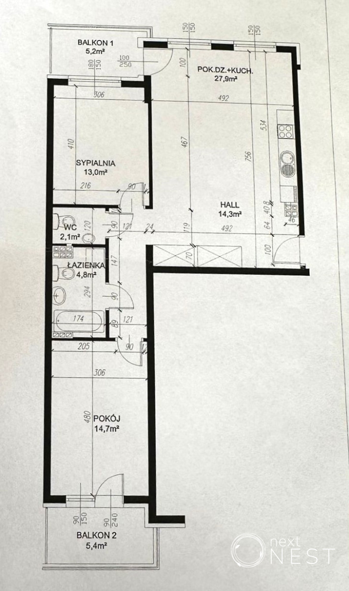
Przedmiotem sprzedaży jest 3-pokojowe mieszkanie o powierzchni 75,55 m2, usytuowane na drugim piętrze budynku w Piasecznie. Do lokalu przynależy komórka lokatorska o powierzchni 5,82 m2 (łączna sprzedawana powierzchnia to 81,37m2 zgodnie z umową nabycia) oraz udział w hali garażowej - duże miejsce postojowe w garażu podziemnym pod budynkiem płatne dodatkowo 35.000zł. 
Mieszkanie posiada 2 balkony 5,2m2 i 5,4m2, dostępne są również wolne miejsca parkingowe na terenie osiedla.

Lokal składa się z:
- pokoju dziennego z aneksem kuchennym 27,9m2,
- hallu 14,3m2
- sypialni 13m2,
- sypialni 14,7m2,
- łazienki 4,8m2,
- garderoby 2,1m2, która w planie widnieje jako osobne wc,
(rzut w galerii).

Mieszkanie częściowo umeblowane i wykończone z dobrej jakości materiałów, meble ruchome nie stanowią oferty. W budynku znajduje się WINDA.

Mieszkanie doskonałe zarówno dla singla, pary lub jako zakup inwestycyjny. Pełna własność, bez obciążeń hipotecznych. Położony na granicy Piaseczna, w kameralnym budynku, z dobrym i szybkim wyjazdem do obwodnicy. W pobliżu rozwinięta infrastruktura handlowo - usługowa, stadion, który oferuje liczne zajęcia sportowe dla dzieci i dorosłych.

Lokalizacja:

szkoły, przedszkole, przychodnia NFZ, urzędy, sklepy, banki, restauracje, apteki, wszelkie usługi, obiekty sportowe, tereny zielone i ścieżki spacerowe, stacja PKP, komunikacja autobusowa - w pieszej odległości.

Zapraszam na prezentację,

Magdalena Mazurkiewicz
662087755
Magdalena Zakrzewska
606621433
Agnieszka Dzierzgowska
606611113

* Treść niniejszego ogłoszenia nie stanowi oferty handlowej w rozumieniu art. 66 Kodeksu Cywilnego.