MIESZKANIE Z ZEJŚCIEM DO DUŻEGO OGRODU

Mieszkanie na sprzedaż
1 451 500,00 PLN , Pow. 93,65 m2
Drukuj ofertę
Drukuj ofertę
Typ nieruchomości:
Mieszkanie
Powierzchnia:
93,65 m2
Typ transakcji:
sprzedaż
Liczba pokoi:
4
Lokalizacja:
Józefosław , Wilanowska
Rok budowy:
2023
Piętro:
1 na 3
Numer oferty:
442528
Cena za m2:
15 499,20 PLN
1 451 500 zł I SPRZEDAŻ I 94M2 I MIESZKANIE I JÓZFOSŁAW I PIASECZNO 

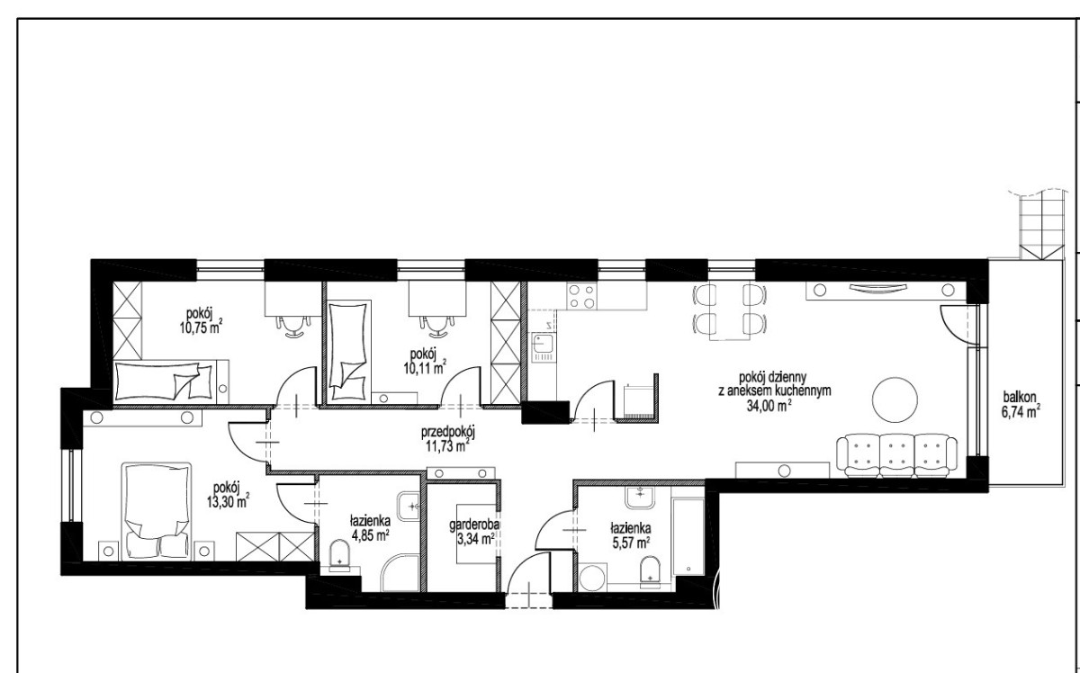
Przedmiotem sprzedaży jest 4 - pokojowe mieszkanie, o powierzchni 94m2, położone na wysokim parterze w Józefosławiu.

Do mieszkania przynależy ogródek o powierzchni 191m2, duże miejsce garażowe w garażu podziemnym oraz komórka lokatorska - w cenie mieszkania.

Mieszkanie składa się z salonu połączonego z kuchnią, trzech sypialni, dwóch łazienek, garderoby/spiżarni i przedpokoju. Z salonu można wyjść na duży balkon, a z niego zejść po schodach do ogrodu.

Mieszkanie znajduje się na uboczu osiedla, jest mieszkaniem skrajnym w budynku, co zapewnia dużą niezależność i komfort w korzystaniu z ogrodu.

Miesięczny czynsz wynosi średnio 1200 zł .W skład czynszu wchodzą: opłata za ogrzewanie, podgrzanie wody, wywóz nieczystości, zaliczki na fundusz remontowy, koszty utrzymania miejsca postojowego, koszty utrzymania nieruchomości wspólnej oraz zimna woda i kanalizacja. Osobno regulowane są opłaty za prąd.

LOKALIZACJA: w pobliżu szkoła podstawowa, przedszkola, żłobki, lokalne targowisko, centrum handlowe, fitness, świetnie rozwinięta infrastruktura usługowo - handlowa, przystanek autobusowy.

Zapraszam na prezentację,
Agnieszka Garbowska
tel. 604 857 039

*Treść niniejszego ogłoszenia nie stanowi oferty handlowej w rozumieniu art. 66 Kodeksu Cywilnego.
Adres strony www: https:// NULL
Nieprawidłowy adres E-mail