2 POKOJE PO REMONCIE GÓRA KALWARIA - Sprzedane

Mieszkanie na sprzedaż
359 000,00 PLN , Pow. 37,26 m2
Typ nieruchomości:
Mieszkanie
Powierzchnia:
37,26 m2
Typ transakcji:
sprzedaż
Liczba pokoi:
2
Lokalizacja:
Góra Kalwaria , Armii Krajowej
Rok budowy:
1960
Piętro:
3 na 4
Numer oferty:
173915
Cena za m2:
9 635,00 PLN
359 000 zł | SPRZEDAŻ | 37,26 m2 | 2 POKOJE | GÓRA KALWARIA

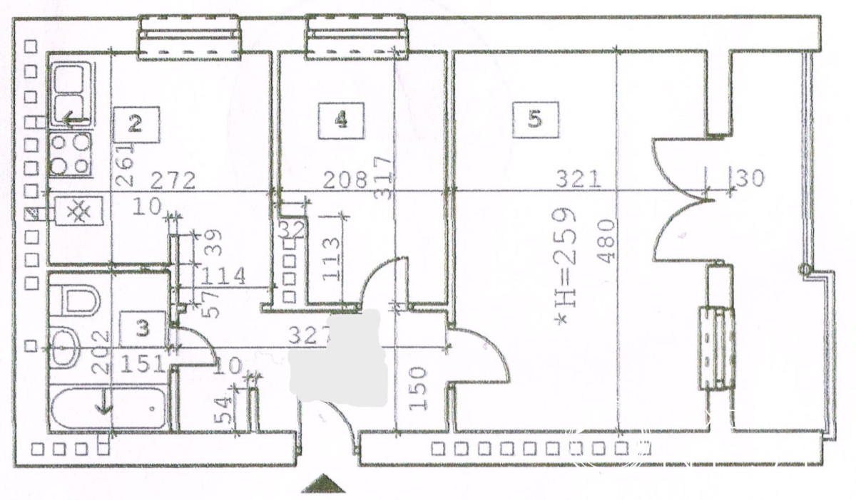
Przedmiotem sprzedaży jest 2-pokojowe mieszkanie, usytuowane na trzecim piętrze w budynku przy ul. Armii Krajowej w Górze Kalwarii.
Mieszkanie składa się z salonu, sypialni, oddzielnej kuchni, łazienki oraz przedpokoju.
Do mieszkania przynależy ponad 5 metrowy balkon na szerokość całego mieszkania oraz piwnica o powierzchni 2,7 m2. 

Wymiary poszczególnych pomieszczeń (rzut w galerii):

salon - 15,4 m2 
sypialnia - 6,59 m2 
przedpokój - 4,90 m2 
kuchnia - 7,10 m2 
łazienka - 3,05 m2 

Mieszkanie jest odnowione, wystarczy zamontować zabudowę w kuchni, wstawić własne meble i można mieszkać.

Wysokość czynszu: około 650 zł (w tym fundusz remontowy, utrzymanie części wspólnej, wywóz nieczystości, ubezpieczenie, zaliczki na zimną i ciepłą wodę, zaliczki na ogrzewanie - dla jednej zameldowanej osoby). 

Odrębna własność, założona księga wieczysta. Możliwy zakup lokalu na kredyt. 

ATUTY NIERUCHOMOŚCI:
- dobrze doświetlone wnętrze
- duży balkon 
- funkcjonalny układ
- piwnica jako dodatkowa przestrzeń do przechowywania

LOKALIZACJA:
- w pobliżu rozwinięta infrastruktura handlowo - usługowa (sklepy, banki, restauracje, apteki, usługi),

Zapraszam na prezentację,
Agnieszka Królica
602126180

* Treść niniejszego ogłoszenia nie stanowi oferty handlowej w rozumieniu art. 66 Kodeksu Cywilnego.