Dom 5 pokoi duża działka Żabieniec gotowy

Dom (Półbliźniak) na sprzedaż
850 000,00 PLN , Pow. 86,29 m2
Drukuj ofertę
Drukuj ofertę
Typ nieruchomości:
Dom
Powierzchnia:
86,29 m2
Typ transakcji:
sprzedaż
Liczba pokoi:
5
Lokalizacja:
Żabieniec
Rok budowy:
2025
Liczba pięter:
1
Numer oferty:
568181
Powierzchnia działki:
486 m2
Cena za m2:
9 850,50 PLN
850 000 zł | SPRZEDAŻ | 86 M2 | LOKAL W BUDYNKU JEDNORODZINNYM DWULOKALOWYM | ŻABIENIEC | GMINA PIASECZNO

Przedmiotem sprzedaży jest nowy dom w Żabieńcu pod Piasecznem wybudowany przez doświadczoną i sprawdzoną firmę budowlaną.
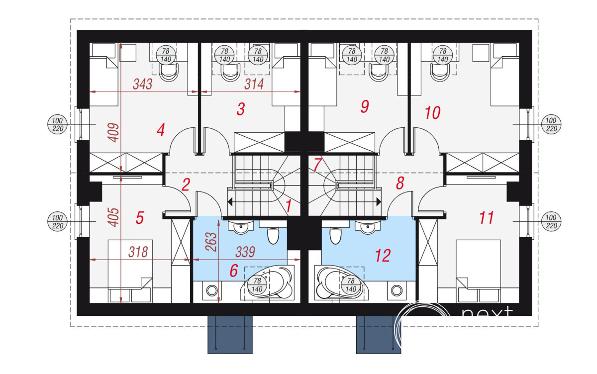
Lokal w budynku jednorodzinnym dwulokalowym w stanie deweloperskim, wybudowany na podstawie projektu DOM W ARKADIACH (R2).
Powierzchnia użytkowa jednej części to 86,29 m2. Dom posadowiony na działce o pow. 486 m2.

Inwestycja zakończona. Dostępny tylko lokal prawy (nr 2)

Cena podana za stan deweloperski obejmujący ogrodzenie, podjazd oraz chodnik z kostki, ocieplenie styropianem grafitowym 20 cm, okna PCV 3 szybowe. Dom budowany z betonu komórkowego, pokryty blachą. Wewnątrz tynki gipsowe maszynowe, wylewki anhydrytowe, ogrzewanie podłogowe na obu piętrach.

Rodzaj pieca grzewczego do uzgodnienia oraz zakupu we własnym zakresie.

MEDIA: woda miejska, prąd, szambo (10 m3 na lokal).

Dojazd drogą utwardzoną, prywatną. 

LOKALIZACJA:
- Żabieniec (okolice Piaseczna)
- szkoły, przedszkola w zasięgu 3 - 4 km
- 3 km od Piaseczna i Konstancina-Jeziorny
- rozległe tereny zielone, lasy chojnowskie, miejsca sportu i rekreacji a jednocześnie bliskość miasta.

BEZ PODATKU PCC I BEZ PROWIZJI AGENCJI !!!

Zapraszam na prezentację: 

Agnieszka Królica
602126180 

* Treść niniejszego ogłoszenia nie stanowi oferty handlowej w rozumieniu art. 66 Kodeksu Cywilnego
Nieprawidłowy adres E-mail