Połowa domu Uwieliny/Kamionka,gm Prażmów

Dom (Półbliźniak) na sprzedaż
850 000,00 PLN , Pow. 135 m2
Drukuj ofertę
Drukuj ofertę
Typ nieruchomości:
Dom
Powierzchnia:
135 m2
Typ transakcji:
sprzedaż
Liczba pokoi:
5
Lokalizacja:
Uwieliny
Rok budowy:
2025
Liczba pięter:
1
Numer oferty:
438467
Powierzchnia działki:
360 m2
Cena za m2:
6 296,30 PLN
850 000 zł | SPRZEDAŻ | POŁOWA DOMU | 135m2 | UWIELINY/KAMIONKA | gm. PRAŻMÓW

ZAKUP BEZPOŚREDNIO OD DEWELOPERA, BEZ PCC !
0% PROWIZJI !

Przedmiotem sprzedaży jest połowa domu jednorodzinnego dwulokalowego o powierzchni użytkowej 135m2 położonego na pograniczu Uwielin i Kamionki w gminie Prażmów.
Dom wybudowany w technologii tradycyjnej wg projektu "Dom w Cyklamenach".

Nieruchomość posadowiona na działce o powierzchni 360m2.
Garaż w bryle budynku oraz miejsce parkingowe przed budynkiem.

Teren wokół domu ogrodzony i zagospodarowany.

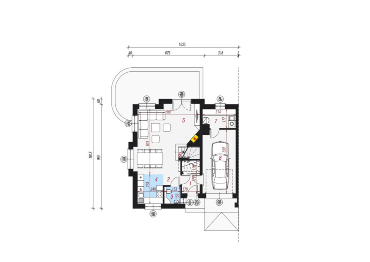
Rozkład pomieszczeń:
Parter- 74,32 
1. Wiatrołap 4,06 
2. Hol 1,65
3. Toaleta 2,33
4. Kuchnia 6,40
5. Salon 31,90
6. Schody 4,89
7. Kotłownia z pralnią 5,16
8. Garaż 17,93

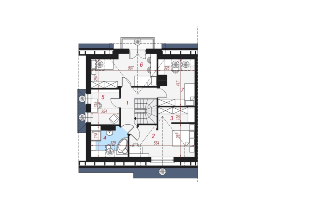
Pietro-  60,89 (71,58)
1. Hol 6,48 (6,48)
2. Pokój 13,47 (16,23)
3. Garderoba 4,47 (4,47)
4. Łazienka 5,40 (8,10)
5. Pokój 7,83 (7,83)
6. Pokój 13,26 (15,93)
7. Pokój 9,98 (12,54)

Dom ogrzewany pompą ciepła.
Media:- woda miejska, prąd, szambo.

Szczegółowy standard wykonania wysyłamy na maila.

Lokalizacja:
- Kamionka, gm. Prażmów
- PKP Czachówek Górny- 4 min samochodem
- Przystanki lokalnych linii autobusowych L17 i L19 w odległości ok. 800m
- Do Piaseczna ok. 25 min samochodem, do Góry Kalwarii ok.20 minut samochodem
- w odległości 5-6 km szkoły podstawowe i przedszkola
- w okolicy liczne tereny zielone i rekreacyjne

Współpracujemy z doradcami kredytowymi, którzy pomogą sprawdzić Twoją zdolność kredytową.

Zapraszamy na prezentację,

Magdalena Zakrzewska
606 621 433
Barbara Sylwestrzak
607 642 086

* Treść niniejszego ogłoszenia nie stanowi oferty handlowej w rozumieniu art. 66 Kodeksu Cywilnego.


Adres strony www: https:// NULL
Nieprawidłowy adres E-mail