6 pokoi z garażem Ustanów blisko do PKP

Dom (Półbliźniak) na sprzedaż
1 249 000,00 PLN , Pow. 152,20 m2
Drukuj ofertę
Drukuj ofertę
Typ nieruchomości:
Dom
Powierzchnia:
152,20 m2
Typ transakcji:
sprzedaż
Liczba pokoi:
6
Lokalizacja:
Ustanów , Kasztanów
Rok budowy:
2025
Liczba pięter:
1
Numer oferty:
616193
Powierzchnia działki:
625 m2
Cena za m2:
8 206,31 PLN
1 249 000 zł | SPRZEDAŻ | 152 M2 | LOKAL W BUDYNKU JEDNORODZINNYM DWULOKALOWYM | USTANÓW | GMINA PRAŻMÓW

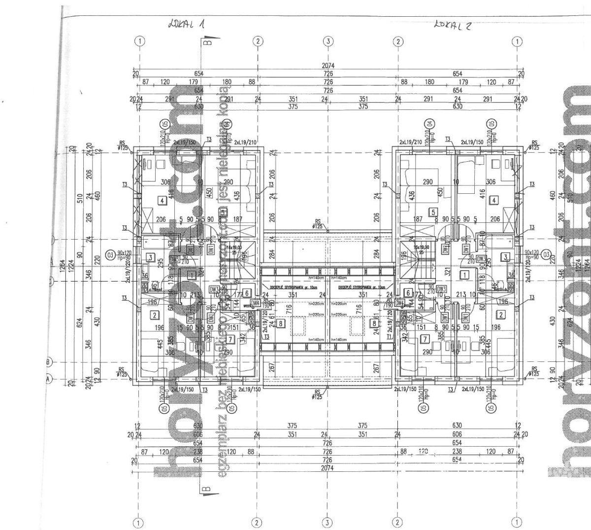
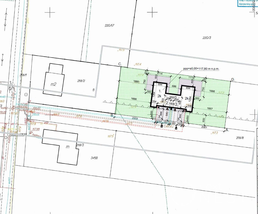
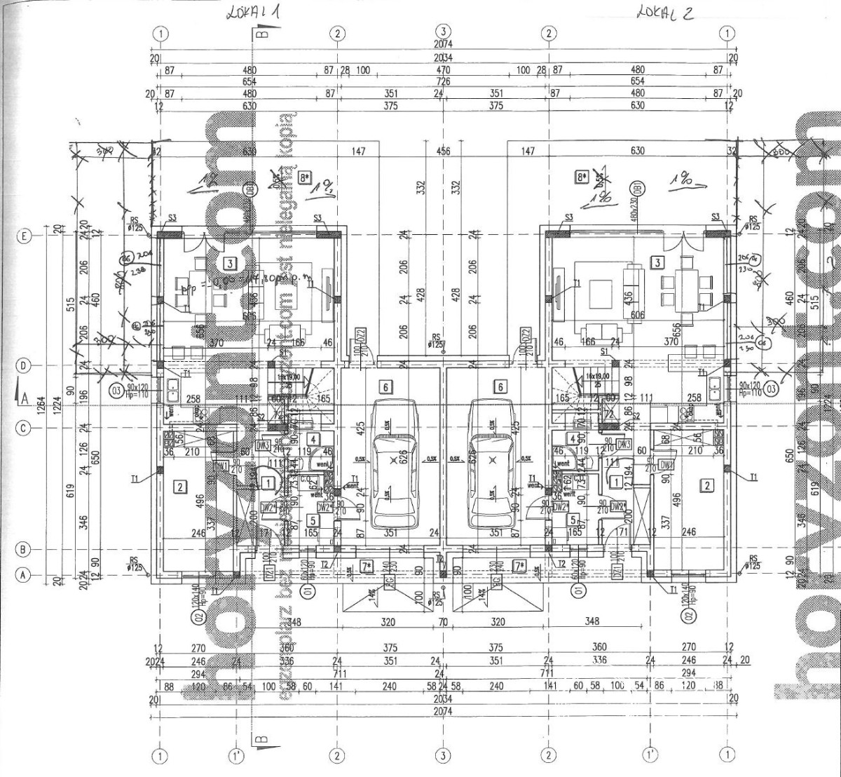
Przedmiotem sprzedaży jest lokal w budynku jednorodzinnym dwulokalowym w Ustanowie (gmina Prażmów za Zalesiem Górnym) w stanie deweloperskim. Dom wybudowany na podstawie projektu MALENA pracowni projektowej Horyzont.

Powierzchnia użytkowa jednej części to 152,20 m2. Dom posadowiony na działce o pow. 625 m2.

Planowane zakończenie prac budowlanych maj 2026.
Dostępne oba lokale.

Cena podana za stan deweloperski obejmujący ogrodzenie, podjazd oraz chodnik z kostki, ocieplenie styropianem grafitowym 20 cm, okna PCV ALUPLAST. Dom budowany z betonu komórkowego (bloczek Ytong), pokryty blachą, izolacja termiczna stropu nad piętrem piana PUR. Wewnątrz tynki gipsowe maszynowe, wylewki, ogrzewanie podłogowe na obu piętrach, pompa ciepła Vaillant.

Szczegółowa specyfikacja techniczna wysyłana mailem. 

MEDIA: prąd, woda miejska, kanalizacja

Dojazd drogą utwardzoną, prywatną.

LOKALIZACJA:
- Ustanów ul. Kasztanowa (gmina Prażmów, za Zalesiem Górnym),
- w bliskiej odległości od stacji PKP,
- rozległe tereny zielone, lasy chojnowskie, miejsca sportu i rekreacji a jednocześnie bliskość miasta.

BEZ PODATKU PCC I BEZ PROWIZJI AGENCJI !!!

Zapraszam na prezentację:

Agnieszka Królica
602126180

* Treść niniejszego ogłoszenia nie stanowi oferty handlowej w rozumieniu art. 66 Kodeksu Cywilnego
Adres strony www: https:// NULL
Nieprawidłowy adres E-mail