Kompaktowy dom w Solcu 4 pokoje media miejskie

Dom (Segment środkowy) na sprzedaż
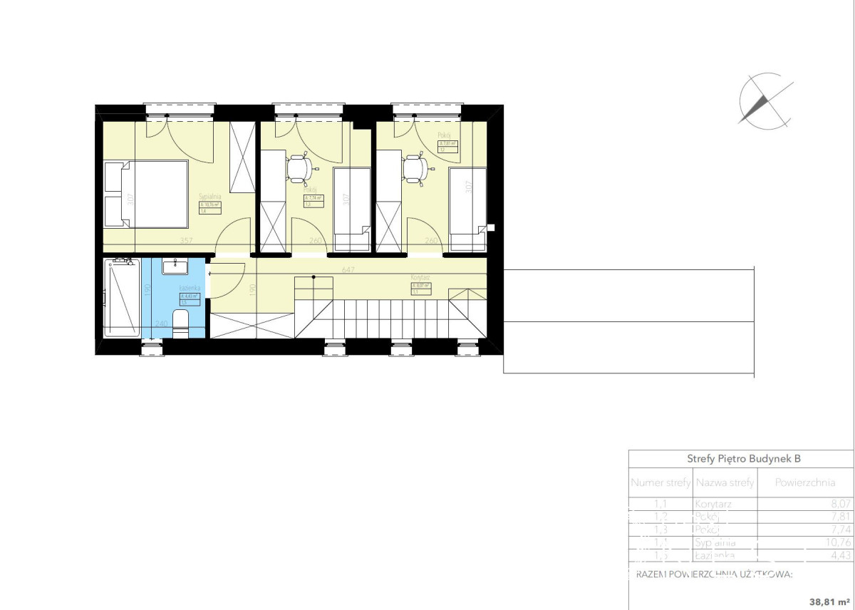
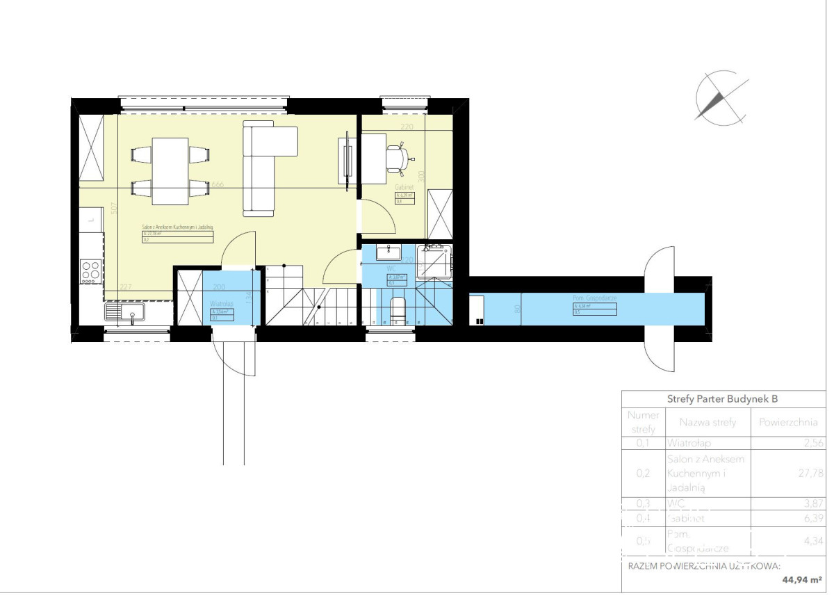
750 000,00 PLN , Pow. 83,62 m2
Drukuj ofertę
Drukuj ofertę
Typ nieruchomości:
Dom
Powierzchnia:
83,62 m2
Typ transakcji:
sprzedaż
Liczba pokoi:
4
Lokalizacja:
Solec , Fiołkowa
Rok budowy:
2026
Liczba pięter:
1
Numer oferty:
575756
Powierzchnia działki:
300 m2
Cena za m2:
8 969,15 PLN
750 000 zł | SPRZEDAŻ | DOM | 83,62 m2 | SOLEC | GMINA GÓRA KALWARIA

OFERTA BEZ PODATKU PCC !!!

NIE POBIERAMY PROWIZJI OD KUPUJĄCEGO !!!

WYGODNE DOMY POD WARSZAWĄ !!! KAMERALNE OSIEDLE !!!

Przedmiotem sprzedaży jest dom jednorodzinny w zabudowie szeregowej (segment środkowy) o powierzchni użytkowej 83,62 m2. Nieruchomość posadowiona na działce o powierzchni 300 m2 w Solcu, w gminie Góra Kalwaria. 

Dom sprzedawany w stanie deweloperskim, wnętrza do aranżacji we własnym zakresie.

ROZPOCZĘCIE INWESTYCJI - WRZESIEŃ 2025
ZAKOŃCZENIE INWESTYCJI - GRUDZIEŃ 2026

ATUTY INWESTYCJI:
- duży ogród
- panoramiczne okna
- kameralna inwestycja 

STANDARD WYKONANIA:
- materiał użyty do budowy ścian - cegła ceramiczna 18,8 cm
- ocieplenie - styropian 20 cm
- tynki gipsowe maszynowe
- okna PCV 3 trzyszybowe
- drzwi wejściowe stalowe antywłamaniowe pełne
- dach - dwuspadowy, pokryty blachą na rąbek
- elewacja - tynk silikonowy oraz kamień naturalny
- kotłownia gazowa
- ogrzewanie podłogowe na obu piętrach
- ogrodzenie panelowe od strony ogrodów
- brama zamykająca osiedle
- podjazdy z kostki betonowej
- taras od strony ogrodu z kostki betonowej

MEDIA MIEJSKIE: prąd, woda, gaz, kanalizacja. 

Jest to kolejna inwestycja dewelopera w tej okolicy. (poprzednie: Solec Wrzosowa, Kąty Cynamonowa, Baniocha Willowa). 

LOKALIZACJA:

- w otoczeniu zabudowy jednorodzinnej
- 1,5 km od obwodnicy Góry Kalwarii
- W NIEDALEKIEJ ODLEGŁOŚCI : SZKOŁA PODSTAWOWA, KOŚCIÓŁ, CENTRUM HANDLOWE BIG ŁUBNA

Zapraszamy na prezentację,

Agnieszka Królica
602 126 180
Agnieszka Dzierzgowska 
606 611 113

* Treść niniejszego ogłoszenia nie stanowi oferty handlowej w rozumieniu art. 66 Kodeksu Cywilnego.
Adres strony www: https:// NULL
Nieprawidłowy adres E-mail