Dom 136m2 działka 300m2 Słomczyn gmina Konstancin

Dom (Bliźniak) na sprzedaż
1 099 000,00 PLN , Pow. 135,53 m2
Typ nieruchomości:
Dom
Powierzchnia:
135,53 m2
Typ transakcji:
sprzedaż
Liczba pokoi:
5
Lokalizacja:
Słomczyn , Wiosenna
Rok budowy:
2026
Liczba pięter:
1
Numer oferty:
111304
Powierzchnia działki:
300 m2
Cena za m2:
8 109,00 PLN
SPRZEDAŻ | LOKAL W DOMU JEDNORODZINNYM DWULOKALOWYM | SŁOMCZYN I GM. KONSTANCIN - JEZIORNA | 1 099 000 zł | 135,53 m2 
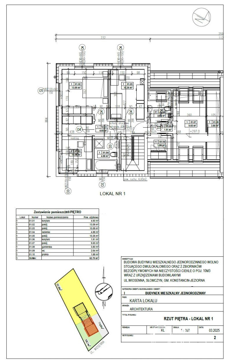
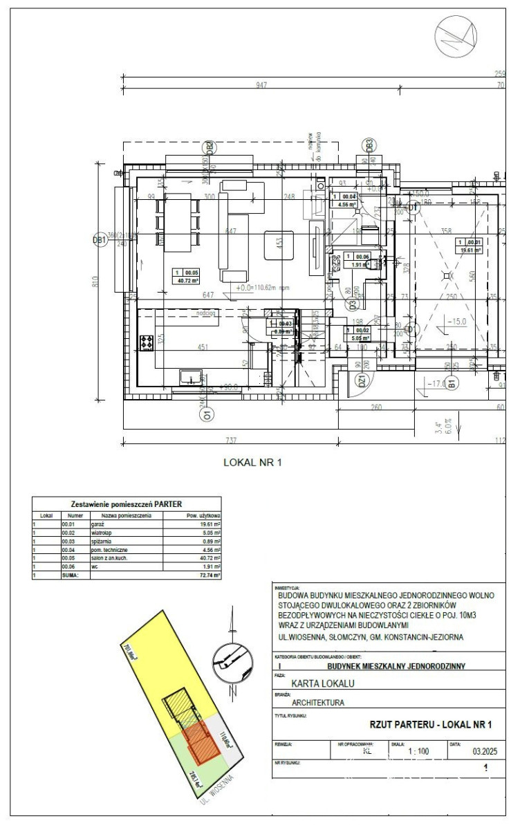
Przedmiotem sprzedaży jest połowa domu jednorodzinnego dwulokalowego w stanie deweloperskim o powierzchni użytkowej 135,53 m2, na działce o powierzchni około 300 m2 do wyłącznej dyspozycji. Cena dotyczy lokalu nr 1.

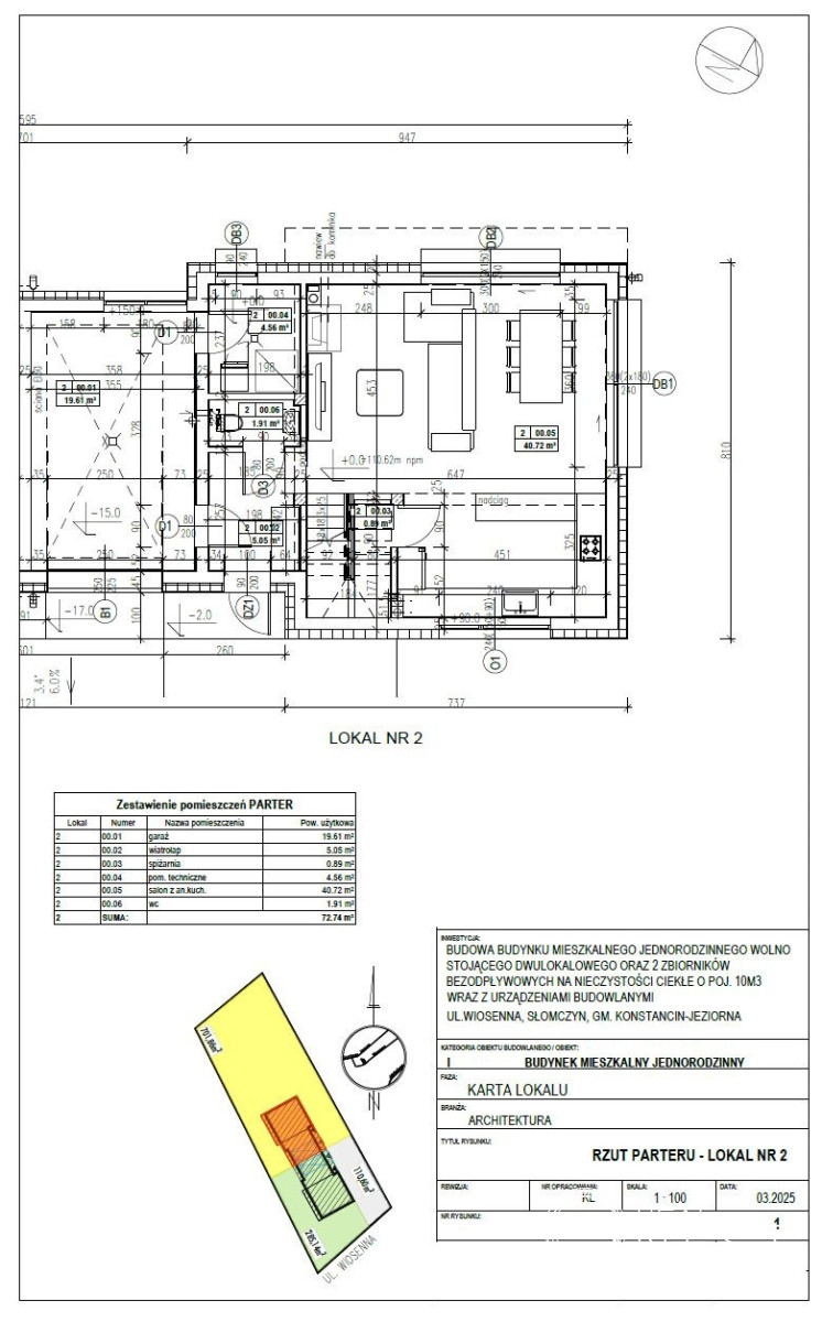
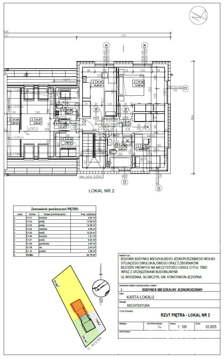
Każdy lokal ma garaż jednostanowiskowy w bryle budynku oraz miejsce postojowe obok budynku. Kameralna inwestycja, przepiękne położenie, niedaleko lasu.

Szczegółowe rzuty w galerii.

Inwestycję wyróżnia:

- wysoki standard,
- funkcjonalny układ i nowoczesna bryła,
- atrakcyjne położenie - bardzo dobre połączenie drogowe na pd. od Warszawy / dojazd Wilanowską /.

Budynek powstał w technologii tradycyjnej, przy użyciu bardzo dobrej klasy materiałów: ścianki fundamentowe żelbetonowe; ściany konstrukcyjne - pustak ceramiczny, ocieplenie styropian 20cm, dach pokryty blachą ocieplony pianą PUR, tynk, okna pcv i drzwi ALUMINIOWE okna tarasowe przesuwne, rekuperacja, brama garażowa segmentowa.
Budynki będą gotowe i oddane do użytkowania maksymalnie do połowy 2026 roku.

Instalacje:

- kompletna instalacja wodno-kanalizacyjna (bez białego montażu),
- instalacja centralnego ogrzewania przystosowana pod pompę ciepła
ogrzewanie podłogowe w całym domu.
- instalacja elektryczna (bez białego montażu),
- rekuperacja,
- instalacja internetowa - pod światłowód
- kominek

Podjazd wyłożony kostką betonową.

Media miejskie: prąd, wodociąg, szambo, z doprowadzona kanalizacja - po dociągnięciu jej przez gminę wystarczy się podpiąć.

Dom posiadać będzie ogrodzenie panelowe, teren ogródków wyrównany i oczyszczony.

LOKALIZACJA:

- w otoczeniu niska zabudowa jednorodzinna,
- szkoła podstawowa w Słomczynie w pieszej odległości,
- centrum handlowe Stara Papiernia - 5 minut,
- dobry dojazd drogowy do Warszawy w 20-30minut.

Możliwość współpracy z doradcą finansowym.

BEZ PODATKU PCC !!!
JESTEŚMY ZEWNĘTRZNYM BIUREM SPRZEDAŻY DEWELOPERA - KUPUJĄCY NIE PONOSI KOSZTÓW WYNAGRODZENIA AGENCJI !!!
ZAKUP MOŻLIWY BEZ POZWOLENIA MSWiA.

Zapraszam na prezentację,

Agnieszka Dzierzgowska
606 611 113

* Treść niniejszego ogłoszenia nie stanowi oferty handlowej w rozumieniu art. 66 Kodeksu Cywilnego.