Orzeszyn,dom 138,5 m2,działka 665 m2,,

Dom (Półbliźniak) na sprzedaż
1 090 000,00 PLN , Pow. 138,50 m2
Drukuj ofertę
Drukuj ofertę
Typ nieruchomości:
Dom
Powierzchnia:
138,50 m2
Typ transakcji:
sprzedaż
Liczba pokoi:
5
Lokalizacja:
Orzeszyn , Kasztanowa
Rok budowy:
2025
Liczba pięter:
1
Numer oferty:
595391
Powierzchnia działki:
665 m2
Cena za m2:
7 870,04 PLN
SPRZEDAŻ | 1 090 000 zł | 138,50 m2 | LOKAL W DOMU JEDNORODZINNYM DWULOKALOWYM | 5 POKOI |ORZESZYN I GM. PIASECZNO

Dostępny juz tylko lokal prawy!

Przedmiotem sprzedaży jest połowa domu jednorodzinnego dwulokalowego w stanie deweloperskim o powierzchni użytkowej 135,53 m2, na działce o powierzchni 665 m2 do wyłącznej dyspozycji. 

BEZ PODATKU PCC !!!
KUPUJĄCY NIE PONOSI KOSZTÓW WYNAGRODZENIA AGENCJI !!!
ZAKUP MOŻLIWY BEZ POZWOLENIA MSWiA.

Do każdego lokalu przynależy garaż w bryle budynku oraz wygodne miejsce postojowe na zewnątrz.
Kameralny charakter inwestycji i wyjątkowe położenie w pobliżu lasu gwarantują ciszę, spokój i bliskość natury- ostatnia linia zabudowy.

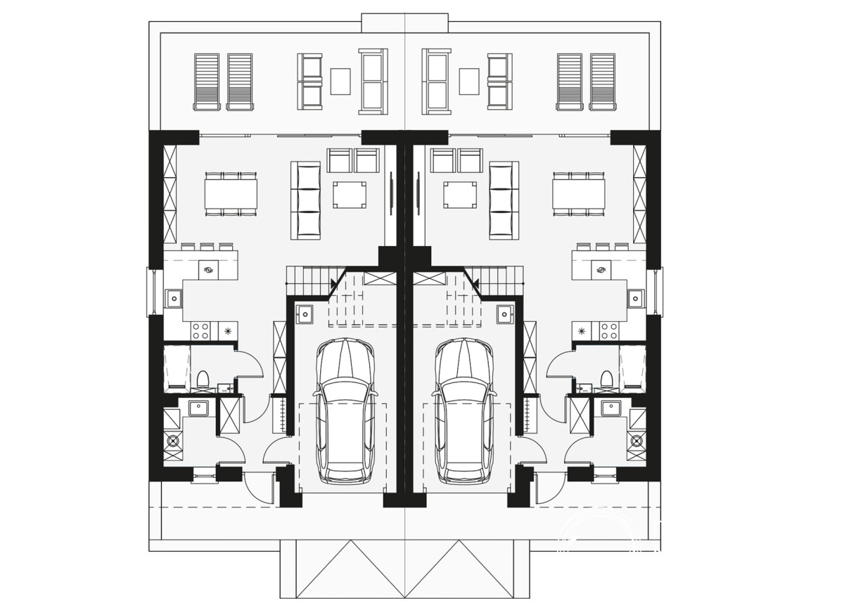
Rozkład pomieszczeń:
Parter:
- salon z aneksem kuchennym- 31,42 m2
- łazienka- 3,11m2
- pomieszczenie gospodarcze- 3,19m2
- wiatrołap- 4,22m2
- hol- 5,73m2
- garaż- 20,5m2
Pietro:
- 4 sypialnie- 10,52m2, 11,26m2, 10,94m2, 15,19m2
- łazienka- 5,94m2
- garderoba- 4,13m2
- strych

Rzuty w galerii.

Budynek powstał w technologii tradycyjnej, przy użyciu bardzo dobrej klasy materiałów: ściany konstrukcyjne- z betonu komórkowego YTONG, ocieplenie styropian grafitowy 20cm, dach - blacha panelowa, piana poliuretanowa, tynk, okna pcv, drzwi zewnętrzne antywłamaniowe, brama garażowa segmentowa Wiśniowski.
Szczegółowy standard wykonania dosyłamy na maila.

Planowany termin oddania lokali do użytkowania - Październik 2025.

Instalacje:

- kompletna instalacja wodno-kanalizacyjna (bez białego montażu),
- instalacja centralnego ogrzewania- pompa ciepła,
- ogrzewanie podłogowe w całym domu,
- instalacja elektryczna (bez białego montażu),
- instalacja internetowa - pod światłowód
- wyprowadzenie pod panele fotowoltaiczne,

Podjazd wyłożony kostką betonową. 

Media miejskie: prąd, woda, kanalizacja.

Dom posiadać będzie ogrodzenie panelowe, bramę wjazdową oraz furtkę z domofonem, teren ogródków wyrównany i oczyszczony.

LOKALIZACJA:
- Orzeszyn- gmina Piaseczno,
- w otulinie parku krajobrazowego objętego programem Natura 2000,
- w otoczeniu niska zabudowa jednorodzinna,
- szkoła podstawowa w Baniosze w odległości ok.7 minut jazdy samochodem,
- centrum handlowe BIG Łubna- 6 minut,
- dojazd drogowy do Warszawy w ok 30minut,
- przystanek autobusowy lokalnej linii L25 w odległości 8 minut pieszo,

Możliwość współpracy z doradcą finansowym.

Zapraszamy na prezentację,

Magdalena Zakrzewska
606 621 433

* Treść niniejszego ogłoszenia nie stanowi oferty handlowej w rozumieniu art. 66 Kodeksu Cywilnego.

Nieprawidłowy adres E-mail