164m2 PARTEROWY DOM w Solcu pod Konstancinem!!! - Sprzedane

Dom (Bliźniak) na sprzedaż
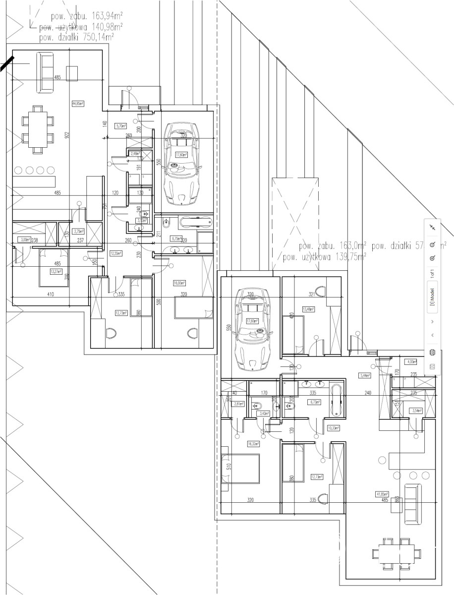
1 299 000,00 PLN , Pow. 164 m2
Typ nieruchomości:
Dom
Powierzchnia:
164 m2
Typ transakcji:
sprzedaż
Liczba pokoi:
4
Lokalizacja:
Konstancin-Jeziorna Solec , Chabrowa
Rok budowy:
2024
Liczba pięter:
1
Numer oferty:
456032
Powierzchnia działki:
750,14 m2
Cena za m2:
7 921,00 PLN
DOM | SOLEC | SPRZEDAŻ | 164m2 całkowita | 141 m2 użytkowa | 1 299 000 zł 

Przedmiotem sprzedaży jest połowa domu jednorodzinnego w zabudowie bliźniaczej ( stan deweloperski ) o powierzchni użytkowej 141m2 na działce o powierzchni 750m2 do wyłącznej dyspozycji. 
Każdy dom ma garaż jednostanowiskowy w bryle budynku oraz dodatkowo miejsce parkingowe naziemne.
Inwestycja jest przepięknie położona, otoczona lasem sosnowym. Ogromnym atutem jest fakt, że budynek jest parterowy, a to rzadkość wśród ofert na rynku nieruchomości w okolicy. Wspaniała alternatywa dla osób , które są zwyczajnie zmęczone ciągłym korzystaniem ze schodów. Szczegółowe rzuty w galerii.
/ SZARA ELEWACJA/

Inwestycję wyróżnia :

- wysoki standard użytych materiałów
- funkcjonalny układ i nowoczesna bryła
- atrakcyjne położenie ( bliska odległość zarówno do : Warszawy, Piaseczna, Konstancina Jeziorny oraz Góry Kalwarii )
- ponadstandardowa wysokość pomieszczeń ( salon ponad 4m )
- duże przeszklenia, które wspaniale doświetlają wnętrza naturalnym światłem

Budynek powstał w technologii tradycyjnej, przy użyciu bardzo dobrej klasy materiałów : ławy fundamentowe żelbetowe, ściany fundamentowe z bloczków betonowych Certus, ściany zewnętrzne Solbet, dach pokryty dachówką marki Braas, okna trzyszybowe firmy Oknolux, izolacja przeciwwilgociowa i termiczna, brama garażowa segmentowa

Instalacje:
- kompletna instalacja wodno-kanalizacyjna ( bez białego montażu )
- pompa ciepła , kotłownia w cenie
- ogrzewanie podłogowe w całym domu
- instalacja elektryczna ( bez białego montażu )
- wentylacja grawitacyjna
- instalacja internetowa pod światłowód

Media miejskie : wodociÄ…g, kanalizacja , prÄ…d
Podjazd wyłożony będzie kostką brukową.
Działka będzie ogrodzona, a  teren ogródków oczyszczony i wyrównany.

Lokalizacja / najbliższe otoczenie
- w otoczeniu niska zabudowa jednorodzinna
- pośród lasu sosnowego
- szkoła podstawowa oraz przedszkole
- 2 place zabaw
- przystanek autobusowy
- centrum handlowe Park Glinianka ( sklepy takie jak Carrefour, Rossmann, Pepco, Galeria Wypieków, Restauracja Sphinx, jubiler, Sinsay, Jysk, Tedi, Homland )
- stacja paliw 3 min
- apteka 24/7
- bankomat
- przychodnia zdrowia NFZ
- weterynarz
- Biedronka
- kebab, pizza, obiady domowe

BUDYNEK GOTOWY - ODEBRANY!


Zapraszam na prezentacjÄ™.

Agnieszka Dzierzgowska
606 611 113

* Treść niniejszego ogłoszenia nie stanowi oferty handlowej w rozumieniu art. 66 Kodeksu Cywilnego.