SEGMENT ŚRODKOWY Z GARAŻEM BOBROWIEC - Sprzedane

Dom (Segment środkowy) na sprzedaż
950 000,00 PLN , Pow. 125,89 m2
Typ nieruchomości:
Dom
Powierzchnia:
125,89 m2
Typ transakcji:
sprzedaż
Liczba pokoi:
6
Lokalizacja:
Bobrowiec , Wilgi
Rok budowy:
2024
Liczba pięter:
2
Numer oferty:
286909
Powierzchnia działki:
179 m2
Cena za m2:
7 546,27 PLN
950 000 zł | Sprzedaż | 125,89 m2 | Segment środkowy | Bobrowiec

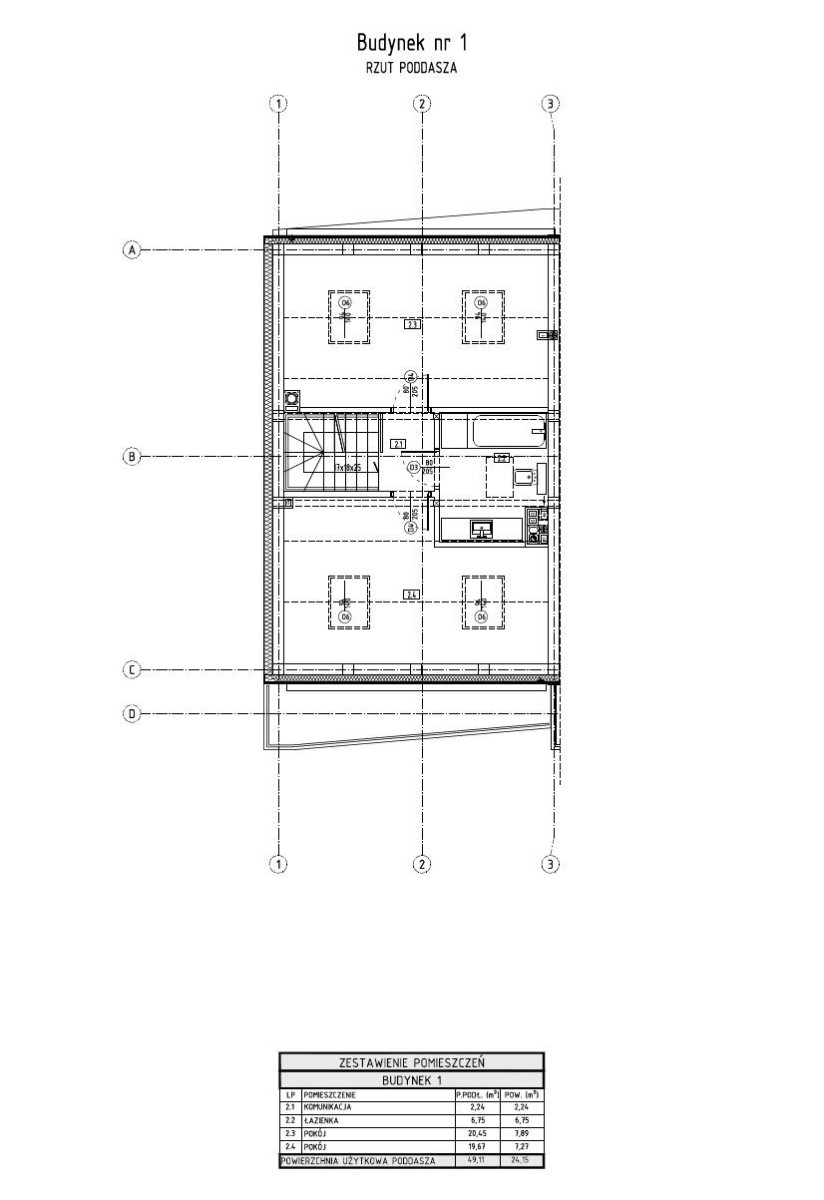
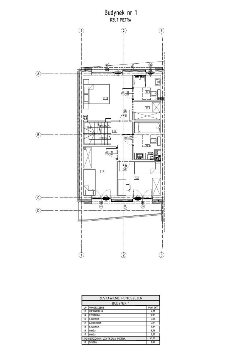
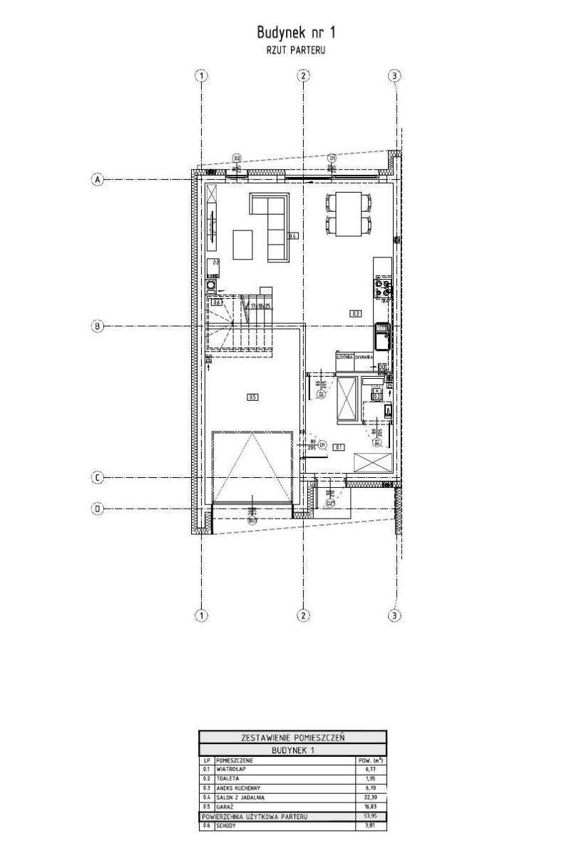
Przedmiotem sprzedaży jest dom jednorodzinny w zabudowie szeregowej o powierzchni użytkowej 125,89 m2. Nieruchomość posadowiona na działce o powierzchni 179 m2. Garaż jednostanowiskowy w bryle budynku. DOM W STANIE DEWELOPERSKIM. 

Inwestycja zakończona, oddana do użytkowania.

Materiały użyte do budowy: 
• Fundamenty - ławy żelbetowe, mury fundamentowe z bloczków , ocieplone styrodurem XPS 15 cm.
• Konstrukcja naziemna - ściany z pustaka ceramicznego Porotherm 25 Dryfix klasa 15, stropy-płyta stropowa żelbetowa 20 cm.
• Dach - skośny o konstrukcji drewnianej kryty blachą na rąbek Pruszyński, ocieplenie pianą PUR-25 cm.
• Ścianki działowe - pustak ceramiczny Porotherm 11,5 cm.
• Wykończenie ścian-tynki gipsowe wykonane maszynowo.
• Posadzki cementowe, zatarte na gładko mechanicznie, na izolacjach cieplnych styropianem EPS100 parter 10 + 5 cm, pietra 5 cm.
• Okna PCV - profil 6-ścio komorowy Deceuninck Elegant (76 mm),w kolorze antracyt obustronnie. 
• Okna połaciowe Fakro.
• Parapety zewnętrzne - blacha powlekana.
• Drzwi zewnętrzne Wikęd Basic - stalowe, przeszklone. 
• Schody żelbetowe.
• Możliwość zamontowania kominka - komin systemowy Schiedel.
• Elewacja wykonana z silikonowego tynku Kabe.
• Ocieplenie grafitowym styropianem EPS 20 cm Knauf.
• Rynny zabudowane w elewacji.

W cenie domu: piec gazowy z zasobnikiem wody, ogrzewanie podłogowe na parterze, garaż :grzejnik, piętro: grzejniki +ogrzewanie podłogowe w łazienkach, poddasze: grzejniki + ogrzewanie podłogowe w łazience, ogrodzenie panelowe od strony ogrodu, podjazdy wykonane z kostki betonowej, odwodnienie rynny z przodu budynku do studni chłonnej, trawnik zagospodarowany.

Piętro domu bez skosów, na poddaszu skosy .

Media miejskie: prÄ…d, wodociÄ…g, kanalizacja, gaz.

Inwestycję wyróżnia:
- wysoki standard,
- bliskość przedszkoli, żłobka i szkoły,
- świetny dojazd do trasy S7 (Puławska BIS),
- funkcjonalne rozwiązania architektoniczne - przemyślany rozkład pomieszczeń

Dom zlokalizowany jest w otoczeniu zabudowy jednorodzinnej. 

Zakup nieruchomości w tej lokalizacji docenią osoby dla których ważne jest dobre połączenie z Warszawą oraz bliskość szkół i przedszkoli.

Zapraszam na prezentacjÄ™,
Agnieszka Królica
602 126 180

* Treść niniejszego ogłoszenia nie stanowi oferty handlowej w rozumieniu art. 66 Kodeksu Cywilnego.